Z prac Gminy
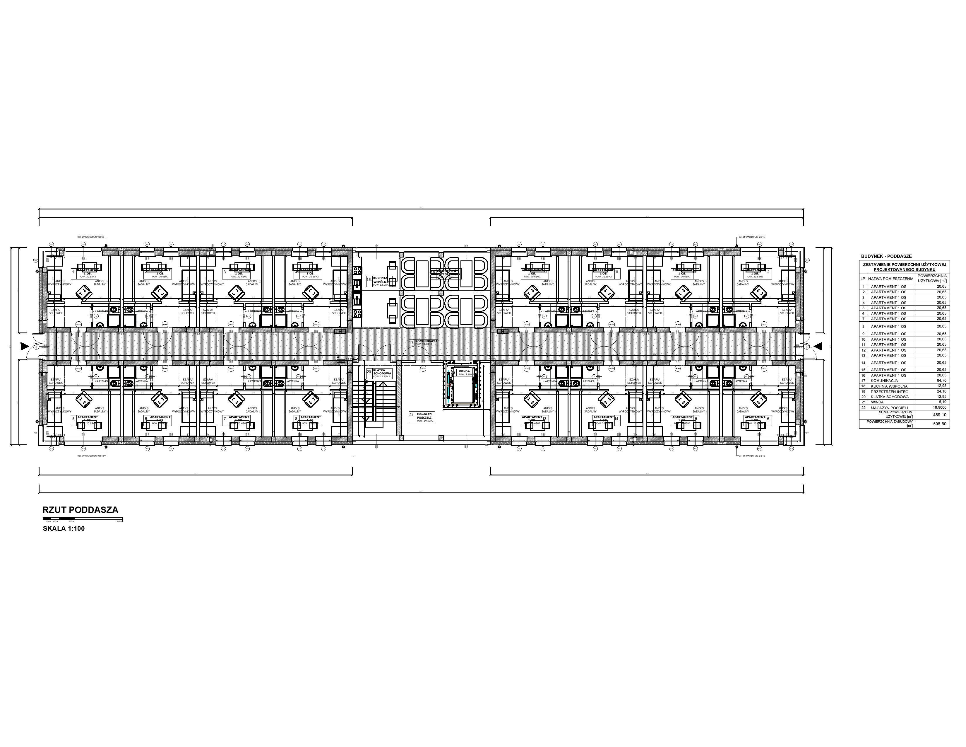
KONCEPCJA CAŁODOBOWEGO DOMU SENIORALNEGO W POŁAŃCU
2019-03-29 14:21dodano przez: G.S
KONCEPCJA CAŁODOBOWEGO DOMU SENIORALNEGO W POŁAŃCU
Powrót do poprzedniejSTRONA ARCHIWALNA
Przejdź na stronę www.portal.polaniec.eudodano przez: G.S
KONCEPCJA CAŁODOBOWEGO DOMU SENIORALNEGO W POŁAŃCU
Powrót do poprzedniejUwaga! Niniejsza strona internetowa podlega ochronie na mocy prawa autorskiego. Wszelkie prawa zastrzeżone. Copyright © Miasto i Gmina Połaniec. Uwaga! Niniejsza strona internetowa podlega ochronie na mocy prawa autorskiego. Wszelkie prawa zastrzeżone. Copyright © Miasto i Gmina Połaniec.