Z prac Gminy
Niższe koszty i lepsza jakość powietrza w naszej gminie...
2018-07-04 15:02
Dodano przez A.K.
Bardzo dobra wiadomość dla Mieszkańców Miasta i Gminy Połaniec. Wspólny wniosek Gminy Połaniec i Starostwa Powiatowego złożony do Urzędu Marszałkowskiego pn. „Budowa instalacji fotowoltaicznych na obiektach użyteczności publicznej Powiatu Staszowskiego i Gminy Połaniec” został pozytywnie oceniony. Otrzyma dofinansowanie w pełnej wnioskowanej wysokości. Kwota pozyskana z Urzędu Marszałkowskiego to: 1.164.876,00 zł.
OBIEKTY PUBLICZNE, NA KTÓRYCH ZAMONTOWANE ZOSTANĄ INSTALACJE FOTOWOLTAICZNE:
Publiczna Szkoła Podstawowa w Połańcu, ul Żapniowska 1
122 panele o mocy maks. 275 W każdy
122 panele o mocy maks. 275 W każdy
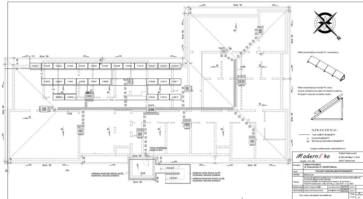
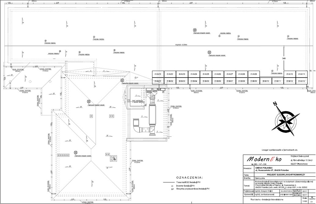
Przychodnia Zdrowia w Połańcu, ul. Ruszczańska 3
24 panele o mocy maks. 275 W każdy
Centrum Kultury i Sztuki w Połańcu, ul Czarnieckiego 5
80 paneli o mocy maks. 275 W każdy
Świetlica Środowiskowa w Połańcu, ul. Sportowa 1
27 paneli o mocy maks. 275 W każdy
Zespół Placówek Oświatowych w Ruszczy, ul. Szkolna 2
48 paneli o mocy maks. 275 W każdy
Publiczne Przedszkole w Połańcu, ul. Madalińskiego 1
80 paneli o mocy maks. 275 W każdy
Środowiskowy Dom Samopomocy w Połańcu, ul Kościuszki 37
20 paneli o mocy maks. 275 W każdy
Jest to bardzo dobra wiadomość, gdyż montowane na obiektach publicznych panele fotowoltaiczne znacznie obniżą koszty eksploatacji, co wpłynie na mniejsze wydatki gminy w tym zakresie. Ogniwa fotowoltaiczne zamieniają energię słoneczną w elektryczną, która jest wykorzystywana do zasilania urządzeń elektrycznych. Fotowoltaika to również ogromne korzyści dla naszego środowiska. Korzystanie z nowoczesnych technologii pozyskiwania energii przyczynia się do jego ochrony,co wpływa na jakość powietrza w naszym otoczeniu. Brak negatywnych skutków korzystania z energii słonecznej oraz połączenie kilku istotnych czynników m. in. oszczędności, zdrowszego powietrza i niewyczerpalnej energii sprawia, iż coraz częściej korzystamy z tego typu technologii. Dzięki energii ze źródeł odnawialnych nie wytwarzamy szkodliwych substancji przedostających się do środowiska,a co za tym idzie przyczyniamy się do redukcji zanieczyszczenia. Wszystkie te działania dążą do polepszenia jakości powietrza w naszej gminie.

















































